Urbanismo/Masterplan Uso mixto
Oficinas y Hoteles Residencial
Rehabilitación Viviendas
Puerta de Aires
Mera
San Xoan de Vilanova
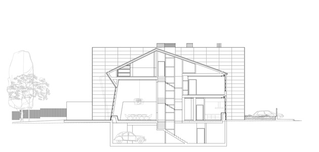
Sky House